|
Beautiful 3-bedroom, 3-bath twin home built in 2024 by C&M Builders, located on Menomonie’s East Side. This like-new property has been meticulously maintained and offers modern finishes throughout, including quartz countertops in the kitchen and baths. Great center island in the kitchen with rollouts in the cabinetry and breakfast counter seating! Enjoy the bright and inviting 3-season porch, which opens to a stamped concrete patio—perfect for relaxing or entertaining. The impressive primary suite features a walk-in shower and a generously sized closet. Additional highlights include convenient main-floor laundry and a no-step entry for easy accessibility. The finished lower level expands your living space with a large family room, third legal bedroom, full bath, and abundant storage in the mechanical/unfinished area. Available due to corporate relocation, with the potential for a quick closing.
Related Documents

3904 Nicholas Dr -- Aerial ►
3904 Nicholas Dr -- Plat Map ►
3904 Nicholas Dr -- Covenants ►
3904 Nicholas Dr -- Condition Report ►
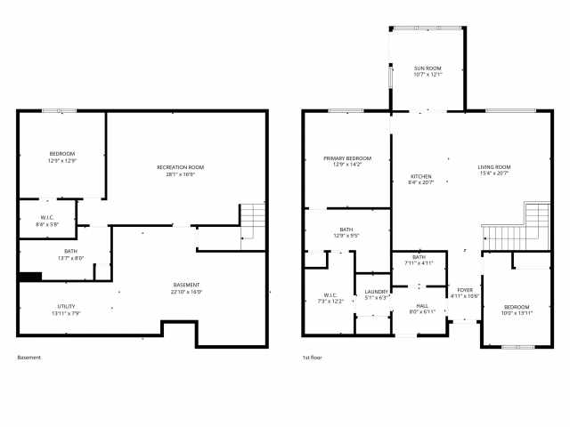
Room Information

|
Living Room:
|
|
17 x 16
|
|
SimulatedWood,Plank
|
|
MAIN
|
|
Dining Room:
|
|
11.50 x 7
|
|
SimulatedWood,Plank
|
|
MAIN
|
|
Kitchen:
|
|
14.50 x 8.50
|
|
SimulatedWood,Plank
|
|
MAIN
|
|
Bedroom #1:
|
|
12 x 11
|
|
|
|
MAIN
|
|
Bedroom #2:
|
|
12.50 x 12
|
|
|
|
LOWER
|
|
Bathroom #1:
|
|
12 x 6
|
|
|
|
MAIN
|
|
Bathroom #2:
|
|
8 x 5
|
|
|
|
MAIN
|
|
Bathroom #3:
|
|
13 x 6
|
|
|
|
LOWER
|
|
Family Room:
|
|
23 x 16
|
|
Carpet
|
|
LOWER
|
|
Laundry Room:
|
|
6 x 5.50
|
|
Vinyl
|
|
MAIN
|
Interior Features

Basement:
| Full, Partially Finished
|
Cooling:
| Central Air
|
Electric:
| Circuit Breakers
|
Fireplace:
| N
|
Foundation:
| Poured
|
Heating:
| Forced Air
|
Exterior and Lot Features

Patio/Deck:
| Concrete, Enclosed, Patio, Three Season
|
Water Service:
| Public
|
Sewer Service:
| Public Sewer
|
Additional Information

Includes: Dryer, Dishwasher, Electric Water Heater, Microwave, Oven, Range, Refrigerator, Washer
Excludes: Sellers Personal
Directions: Located on Menomonie’s East Side! Hwy 12/29 to South on Lookout Rd to Left/East on Schneider Ave to South/Right on Lookout Rd to West/Right on Kothlow/550th Ave to Left/South on Nicholas Dr to home on the left. See house #3904 and for sale sign. Get directions to this property. ►
Last Updated: April 24th, 2026
Listing Agency: Rassbach Realty LLC
Listing Agent: Jill Rassbach
|